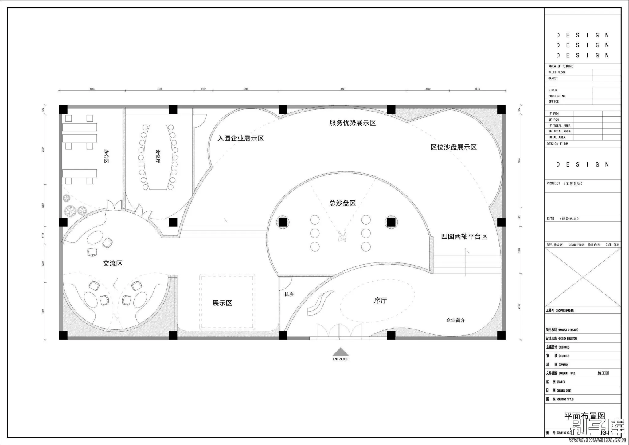
2024年15套展馆展览展厅平面布置方案设计图CAD

2024年15套展馆展览展厅平面布置方案设计图CAD

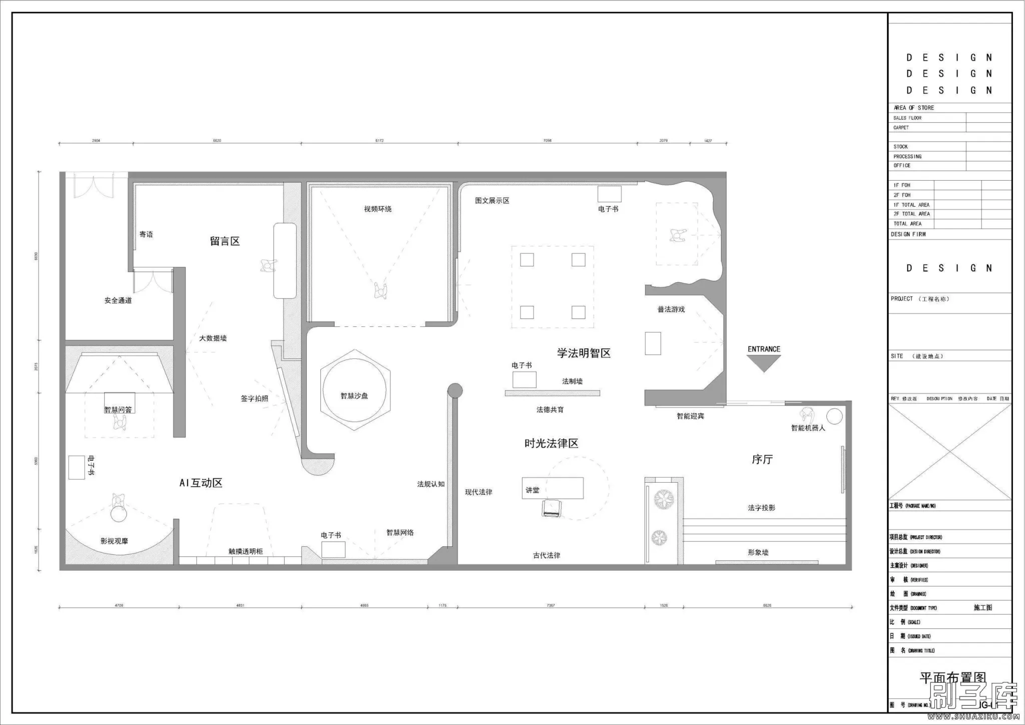
20240603105031555-01

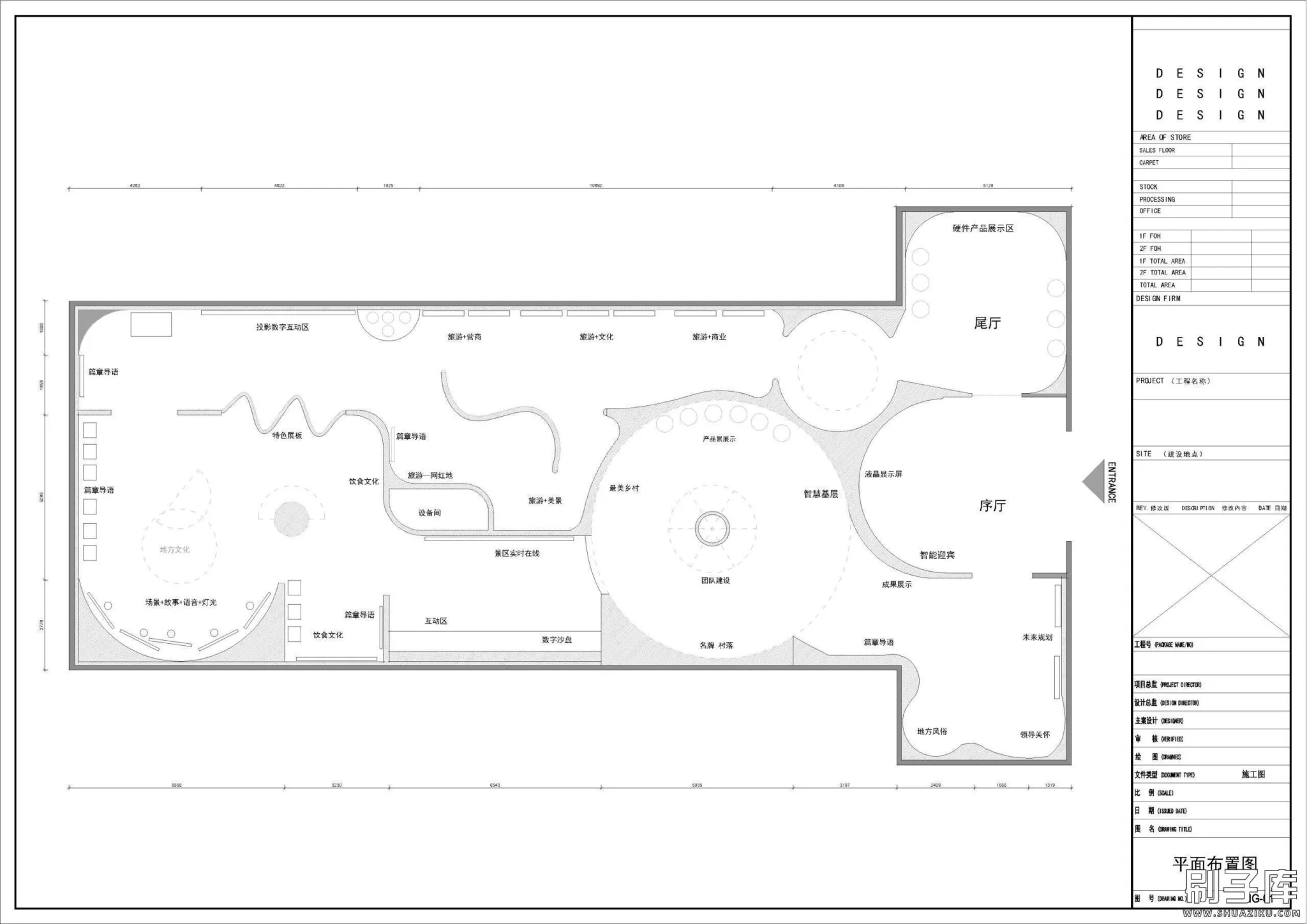
20240603105035548-05

20240603105031589-02

20240603105038121-06

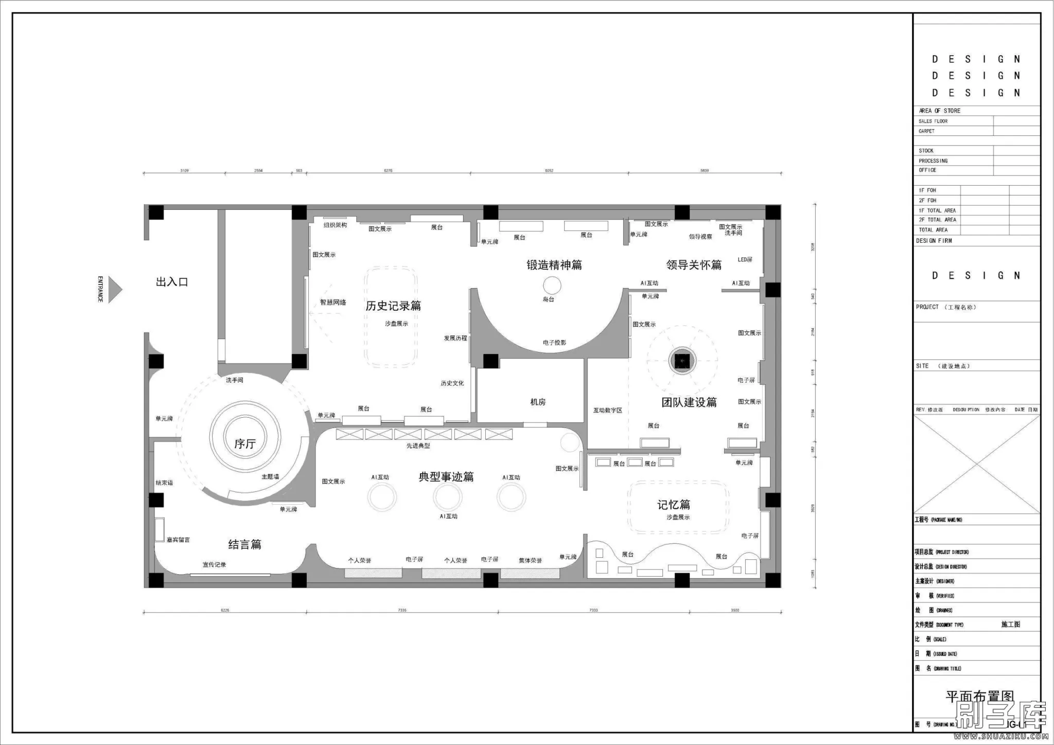
20240603105031825-03

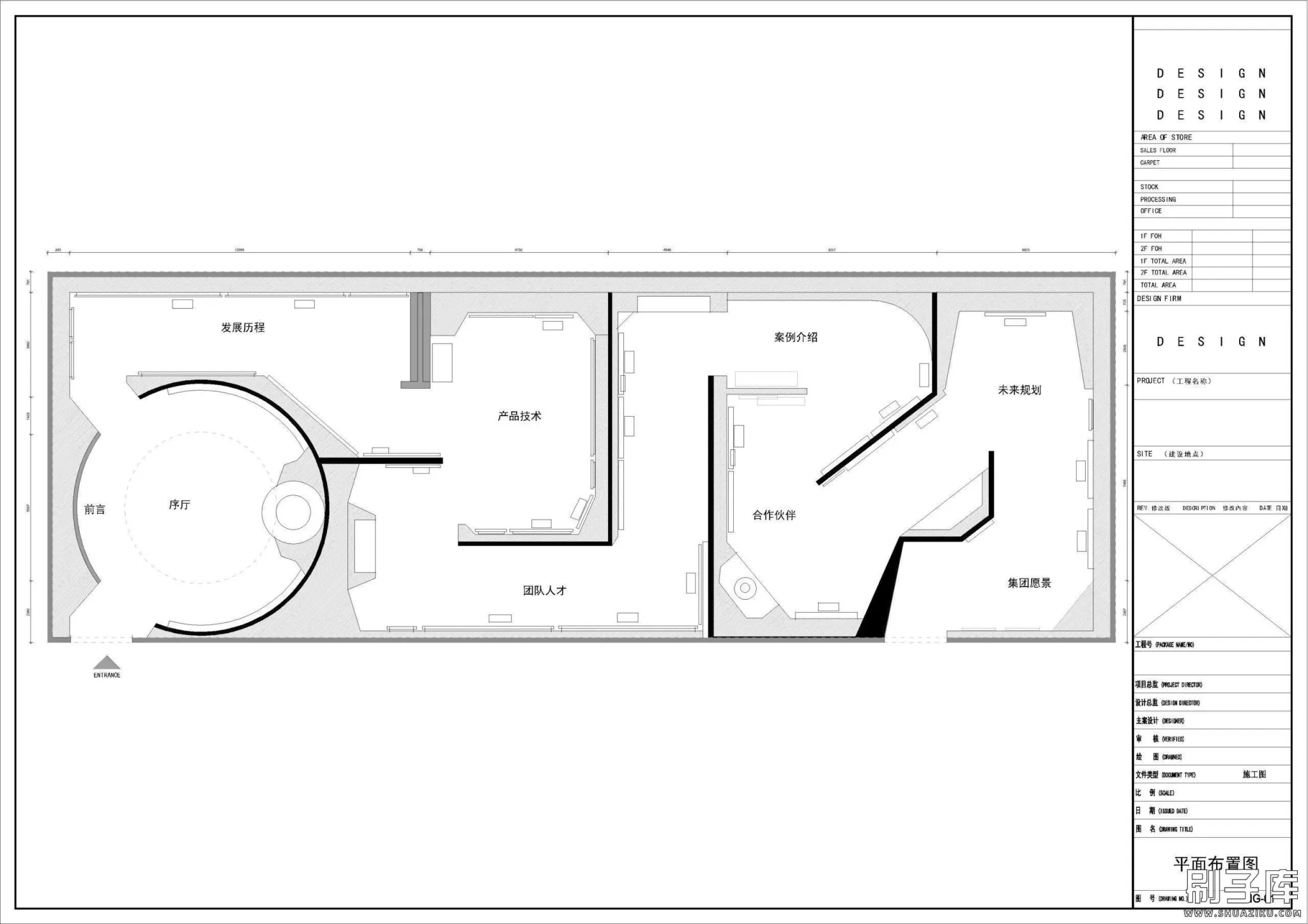
20240603105039697-07

20240603105041480-08

20240603105032696-04

© 版权声明
THE END
喜欢就支持一下吧
点赞15 分享
2024年15套展馆展览展厅平面布置方案设计图CAD-刷子库
2024年15套展馆展览展厅平面布置方案设计图CAD
此内容为付费资源,请付费后查看
素材币5
付费资源