87张咖啡厅平面图-no.001,JPG+PNG
【设计师必备】咖啡厅平面布置参考,87张已建成咖啡厅平面布置方案,以面积大小整理标注,方便查阅。
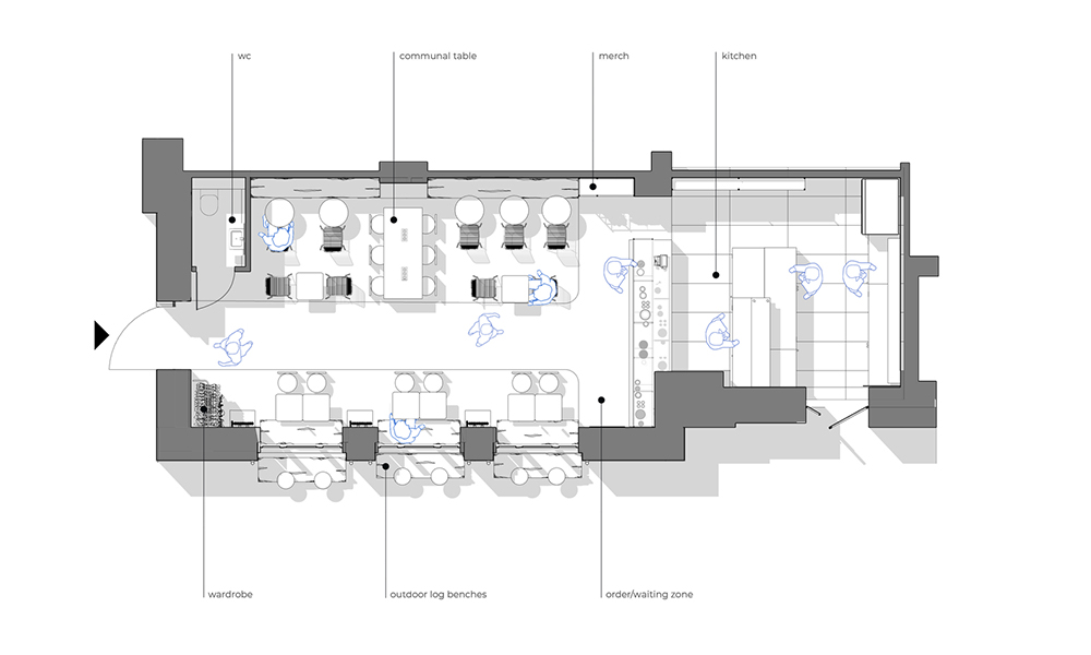
∇ 文件内容预览
整体涵盖面积大小:
18㎡–100㎡:
18㎡咖啡厅平面方案1套、24㎡咖啡厅平面方案2套、40㎡咖啡厅平面方案4套、64㎡咖啡厅平面方案1套、70㎡咖啡厅平面方案2套、71㎡咖啡厅平面方案1套、72㎡咖啡厅平面方案1套、75㎡咖啡厅平面方案1套、80㎡咖啡厅平面方案1套、86㎡咖啡厅平面方案1套、90㎡咖啡厅平面方案1套、95㎡咖啡厅平面方案1套、98㎡咖啡厅平面方案1套、100㎡咖啡厅平面方案1套;
100㎡–200㎡:
107㎡咖啡厅平面方案1套、120㎡咖啡厅平面方案1套、123㎡咖啡厅平面方案1套、139㎡咖啡厅平面方案1套、150㎡咖啡厅平面方案3套、154㎡咖啡厅平面方案1套、155㎡咖啡厅平面方案1套、173㎡咖啡厅平面方案1套、180㎡咖啡厅平面方案2套、189㎡咖啡厅平面方案1套、200㎡咖啡厅平面方案2套;
200㎡–300㎡:
214㎡咖啡厅平面方案1套、216㎡咖啡厅平面方案1套、217㎡咖啡厅平面方案1套、230㎡咖啡厅平面方案1套、235㎡咖啡厅平面方案1套、238㎡咖啡厅平面方案1套、240㎡咖啡厅平面方案1套、250㎡咖啡厅平面方案1套、276㎡咖啡厅平面方案1套、297㎡咖啡厅平面方案1套;
300㎡–400㎡:
345㎡咖啡厅平面方案1套、347㎡咖啡厅平面方案1套、354㎡咖啡厅平面方案1套、360㎡咖啡厅平面方案2套、370㎡咖啡厅平面方案1套、374㎡咖啡厅平面方案1套、378㎡咖啡厅平面方案1套、397㎡咖啡厅平面方案1套
;
400㎡–2100㎡:
465㎡咖啡厅平面方案1套、500㎡咖啡厅平面方案1套、518㎡咖啡厅平面方案1套、580㎡咖啡厅平面方案1套、672㎡咖啡厅平面方案1套、966㎡咖啡厅平面方案1套、2100㎡咖啡厅平面方案1套;
∇ 部分平面图预览
![图片[5]-【设计师必备】87张咖啡厅平面图-刷子库](https://cdn.shuaziku.com/wp-content/uploads/2022/09/1662519546-f776483c3c9f7b4.jpg)



















