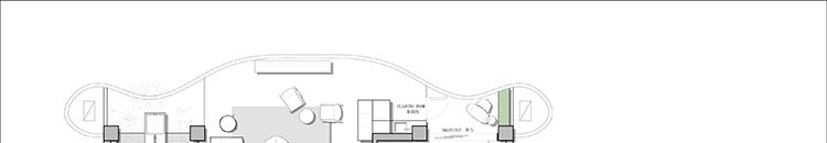
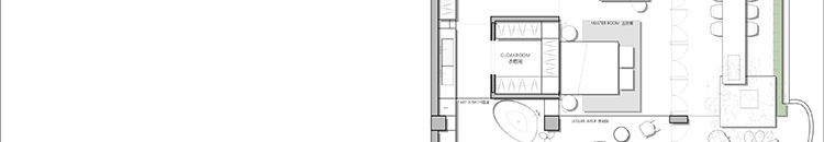
平面布局是室内设计的灵魂
平面图在整套方案图纸中很重要
![图片[1]-最新室内户型平面方案合辑!!(含彩平源文件)-刷子库](https://cdn.shuaziku.com/wp-content/uploads/2022/10/1665748233-db608ae2c216715.png)
![图片[3]-最新室内户型平面方案合辑!!(含彩平源文件)-刷子库](https://cdn.shuaziku.com/wp-content/uploads/2022/10/1666338870-b6af6559acab8ff.jpg)
![图片[230]-最新室内户型平面方案合辑!!(含彩平源文件)-刷子库](https://cdn.shuaziku.com/wp-content/uploads/2022/10/1666338788-b6af6559acab8ff-1.jpg)
© 版权声明
文章版权归作者所有,未经允许请勿转载,刷子库作为网络服务提供者,尊重网络版权及其他知识产权,对非法转载、盗版行为的发生不具备充分的监控能力,若您的权利被侵害,请与我们联系!
THE END




















