【设计师必备】48个酒吧项目平面图

48个酒吧项目平面图,JPG+PNG

 

【设计师必备】酒吧平面布置参考,48个已建成酒吧项目平面布置方案。

 

∇ 文件内容预览

【设计师必备】48个酒吧项目平面图-1

 

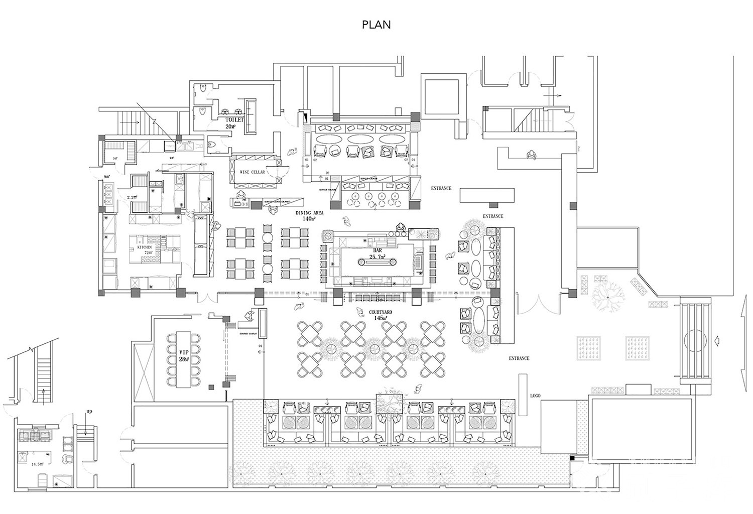
∇ 部分平面图预览

 

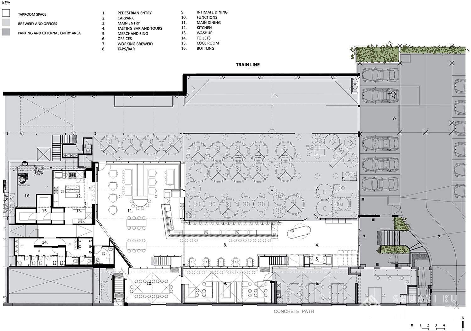
【设计师必备】48个酒吧项目平面图-2

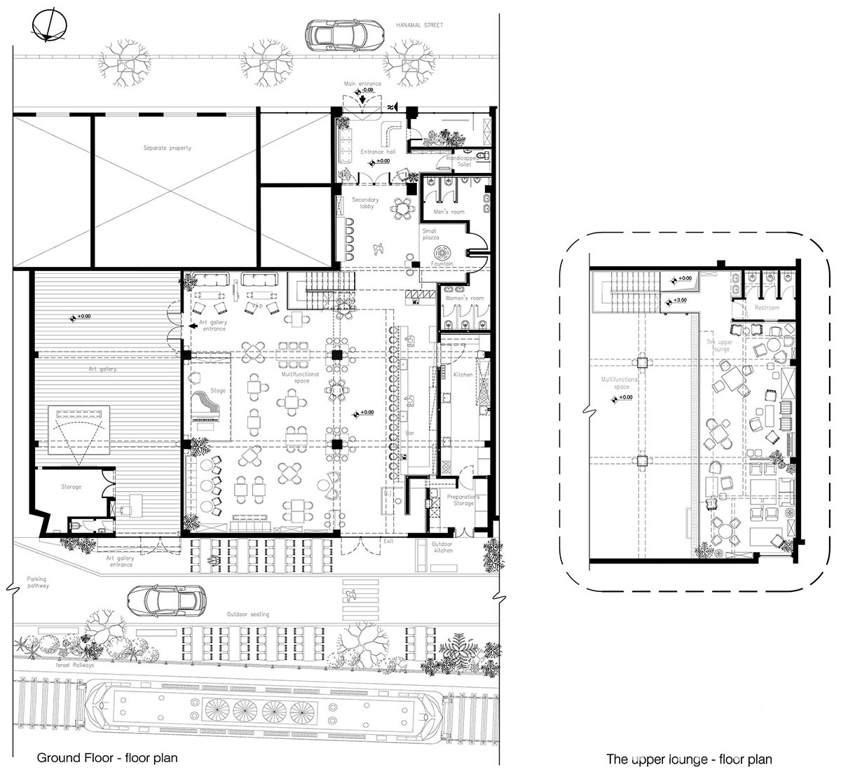
【设计师必备】48个酒吧项目平面图-3

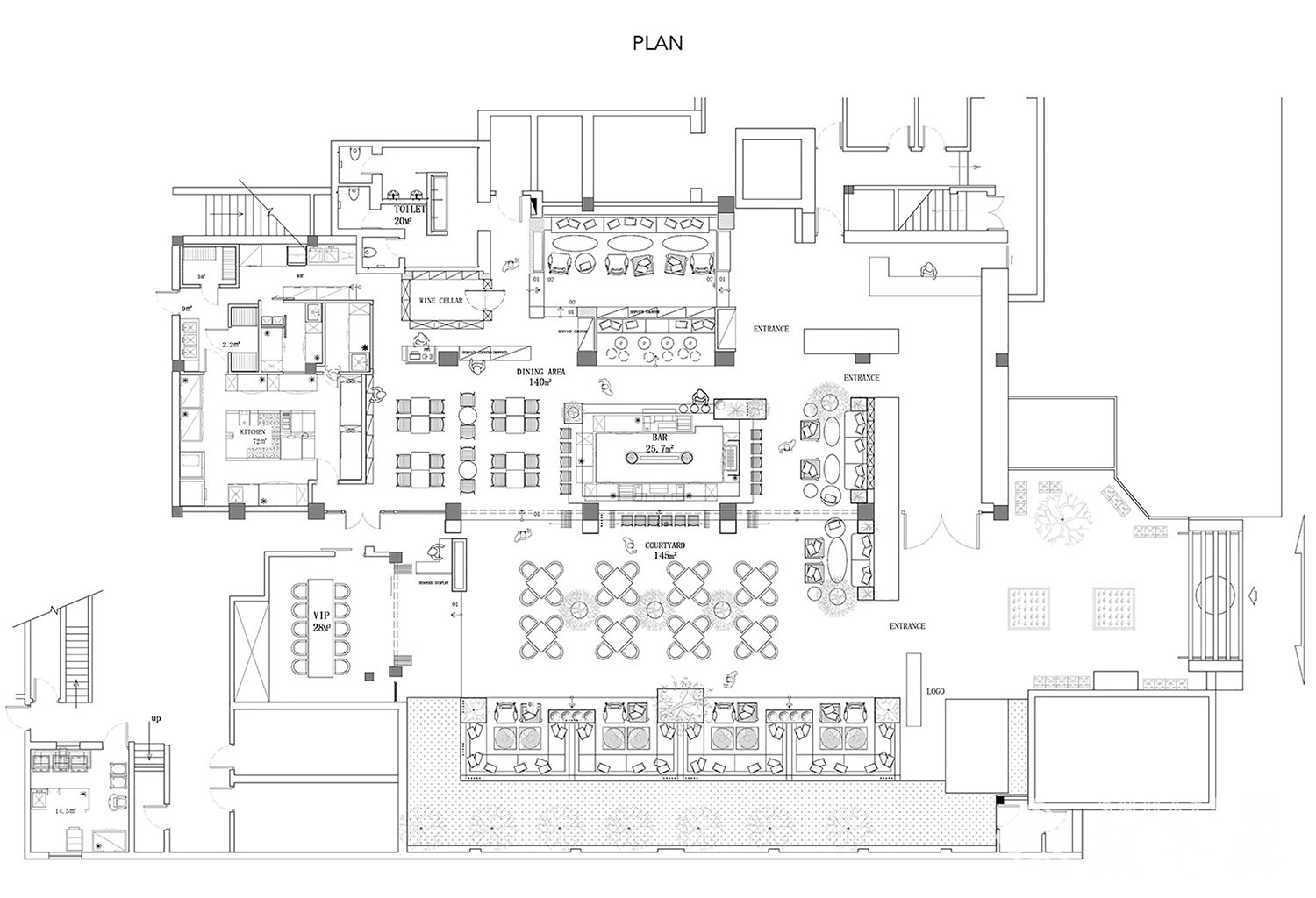
【设计师必备】48个酒吧项目平面图-4

© 版权声明
THE END
喜欢就支持一下吧
点赞6 分享
【设计师必备】48个酒吧项目平面图-刷子库
【设计师必备】48个酒吧项目平面图
此内容为付费资源,请付费后查看
素材币4
付费资源