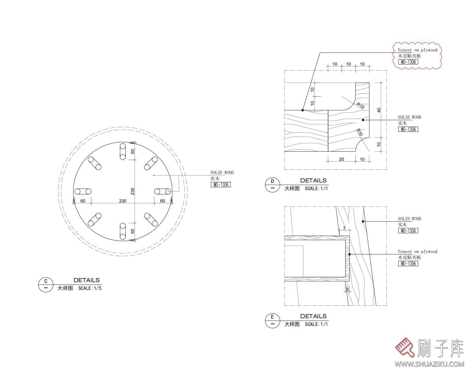
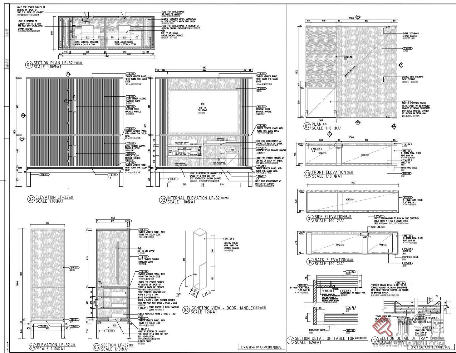
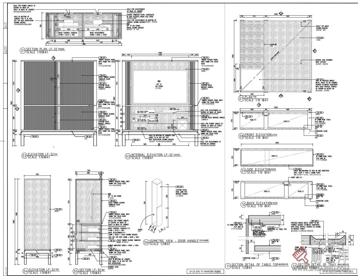
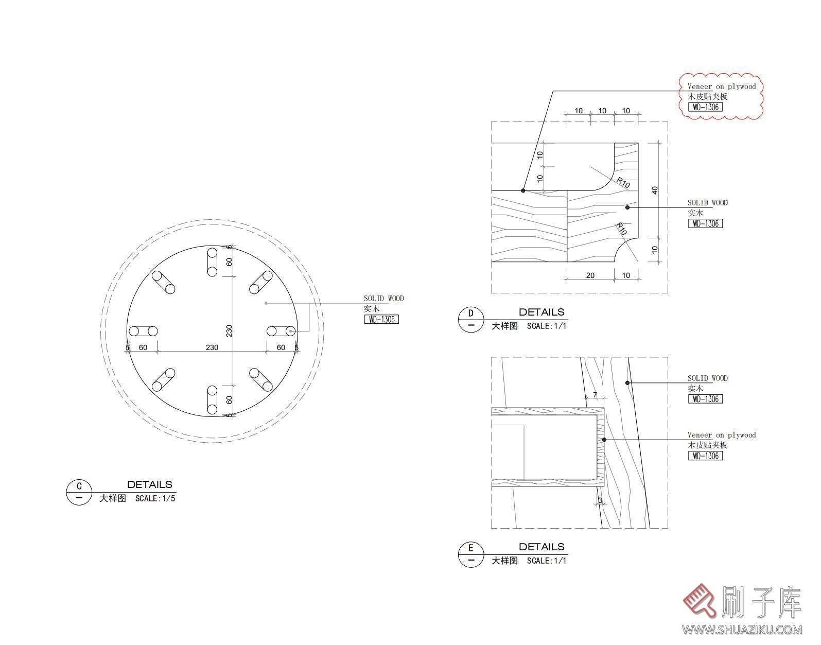
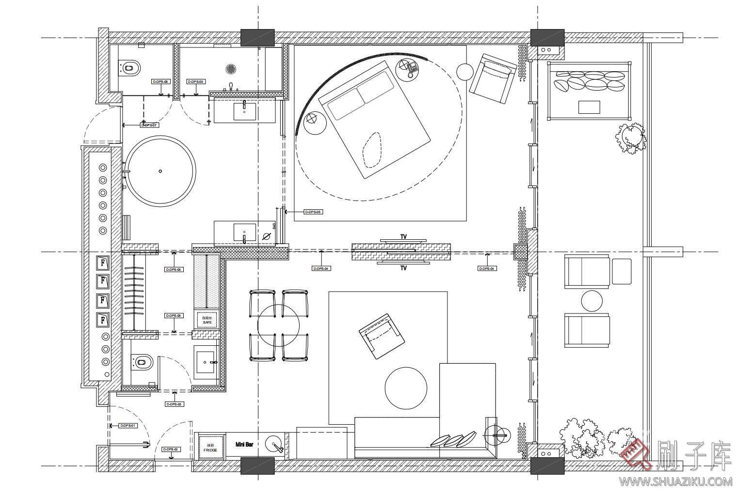
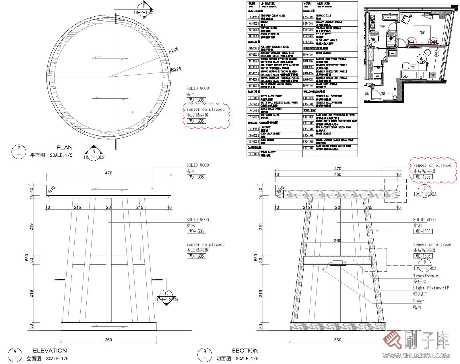
本套资料来自国内外著名公司最新物料作品
包括FF&E、物料表、材料表、家具、灯具、物料手册、洁具、五金、开关插座、家具规格、样本、灯光设计、CAD、软装清单等
分类:酒店、办公、餐饮、商业、别墅、样板间、售楼处、公寓、会所、公共文化等
![图片[29]-【顶尖公司物料FF&E案例合辑】/40G 可编辑-刷子库](https://cdn.shuaziku.com/wp-content/uploads/2022/10/1664765204-901729cab8b286a.jpg)
© 版权声明
文章版权归作者所有,未经允许请勿转载,刷子库作为网络服务提供者,尊重网络版权及其他知识产权,对非法转载、盗版行为的发生不具备充分的监控能力,若您的权利被侵害,请与我们联系!
THE END






















