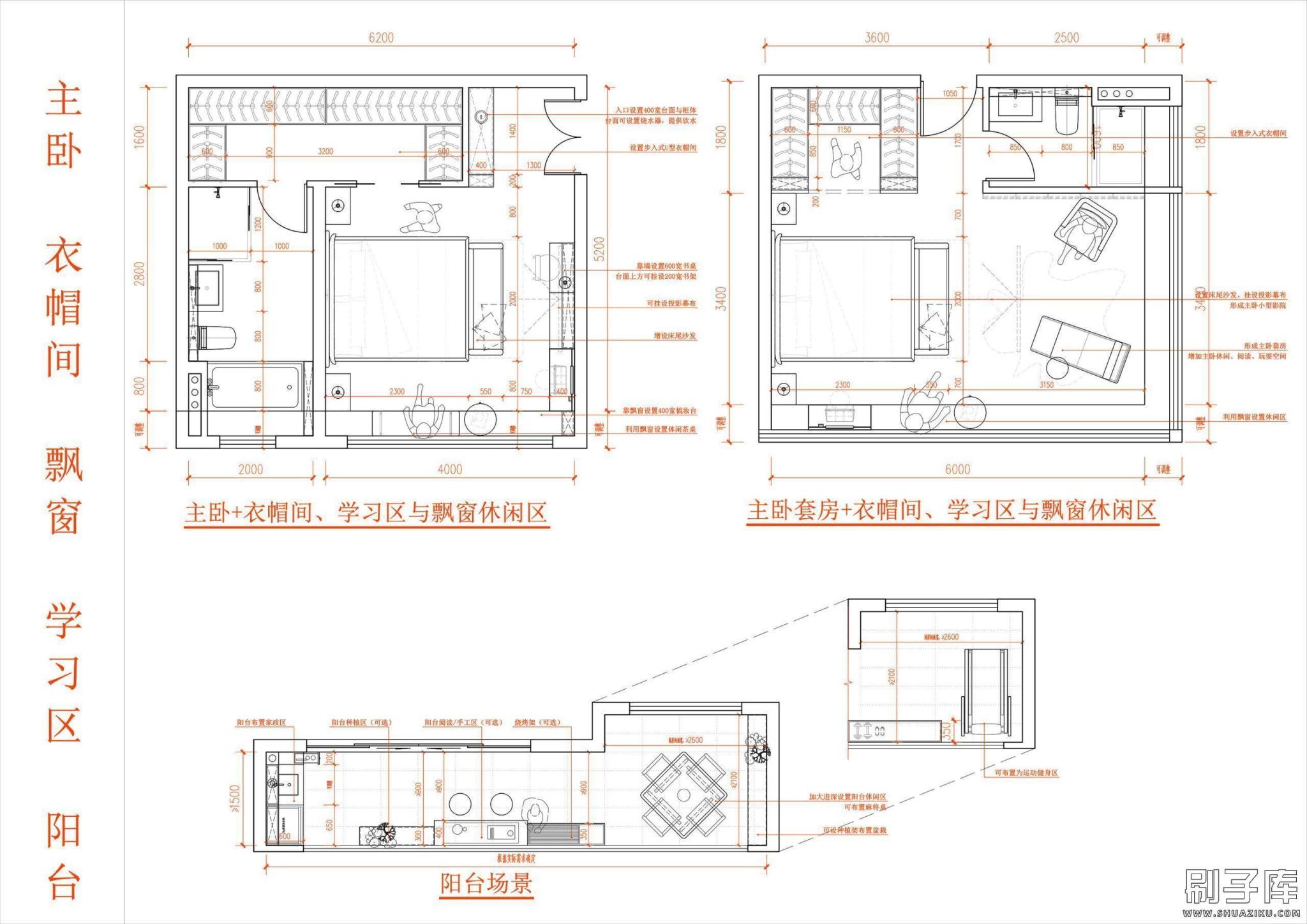
2024高端家装场景化家居模块及流线布置CAD模板YLD.Studio贵阳YLD空间设计工作室,高端设计图库 ADVANCED CAD TEMPLATE 系列作者。联系邮箱:yld.studio@foxmail.com关注私信4388 © 版权声明文章版权归作者所有,未经允许请勿转载,刷子库作为网络服务提供者,尊重网络版权及其他知识产权,对非法转载、盗版行为的发生不具备充分的监控能力,若您的权利被侵害,请与我们联系!THE ENDCAD图库# CAD图库# 2024高端家装# 场景化家居模块# 流线布置模板 喜欢就支持一下吧点赞8 分享QQ空间微博QQ好友复制链接收藏1