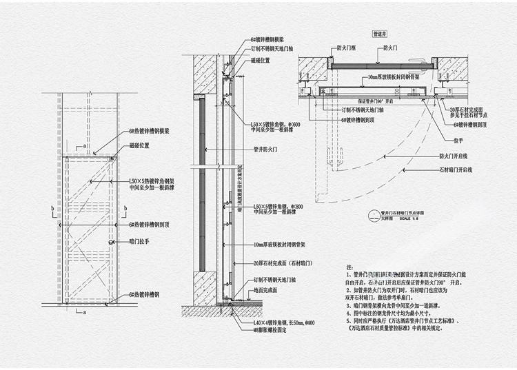
18种房门玻璃防火推拉门cad节点大样剖面详图室内立面图图纸素材

图片[1]-18种房门玻璃防火推拉门cad节点大样剖面详图室内立面图图纸素材-刷子库 图片[2]-18种房门玻璃防火推拉门cad节点大样剖面详图室内立面图图纸素材-刷子库 图片[3]-18种房门玻璃防火推拉门cad节点大样剖面详图室内立面图图纸素材-刷子库 图片[4]-18种房门玻璃防火推拉门cad节点大样剖面详图室内立面图图纸素材-刷子库 图片[5]-18种房门玻璃防火推拉门cad节点大样剖面详图室内立面图图纸素材-刷子库

© 版权声明
THE END
喜欢就支持一下吧
点赞13 分享
18种房门玻璃防火推拉门cad节点大样剖面详图室内立面图图纸素材-刷子库
18种房门玻璃防火推拉门cad节点大样剖面详图室内立面图图纸素材
此内容为付费资源,请付费后查看
素材币5
付费资源